Functie en context
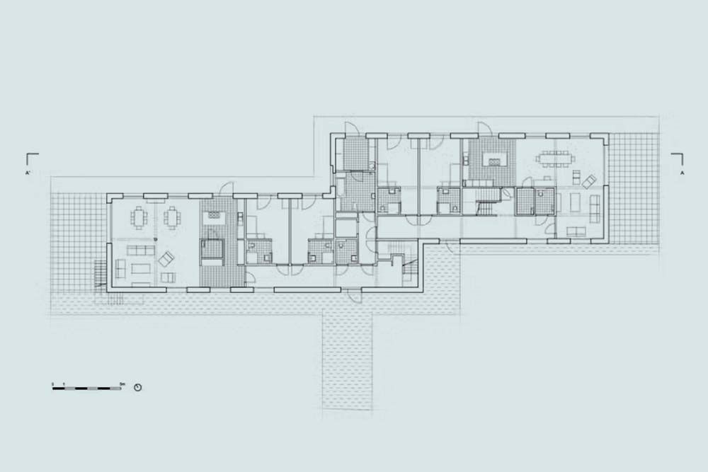
Architectenbureau Felt transformeerde een villa in Merksplas (BE) tot een woonzorggebouw voor mensen met psychische kwetsbaarheden. De bestaande constructie werd teruggebracht tot de dragende structuur van parallelle wanden, waarbij dak en afwerking verdwenen. Deze structuur vormde het uitgangspunt voor een nieuw plan met een gang die studio's met elkaar verbindt.
Een toegevoegde vleugel herbergt een tweede woongroep. Het gebouw van 948 vierkante meter biedt onderdak aan twee groepen van acht bewoners, in opdracht van vzw Emmaüs.
De organisatie volgt het principe van zelfstandige wooneenheden binnen een gemeenschappelijk geheel. Aan de straatzijde presenteert het project zich als één volume. Aan de tuinzijde artikuleren de zadeldaken de individuele kamers, waarbij de herhaling een gelaagde lezing mogelijk maakt: afzonderlijke eenheden die samen een collectief vormen. Het ontwerp onderzoekt het evenwicht tussen zorg en wonen, een spanning die eigen is aan zorgarchitectuur.
De materialisering bestaat uit baksteen, leien en schrijnwerk in grijze tinten. Goten en regenafvoeren delen deze tonaliteit. De openingen zijn ritmisch geplaatst en kaderen uitzichten op de tuin. De compositie geeft het gebouw een horizontaal karakter. Een verschuiving in het gevelvlak zorgt ervoor dat het volume zich voegt naar de omliggende villawijk. De detaillering draagt bij aan de integratie in de omgeving.
Het project combineert een structurele logica met een materialisering die past bij de functie en context. De architectuur is afgestemd op de bewoners van het woonzorggebouw. De samenwerking met Robuust en de fotografie van Olmo Peeters documenteren het opgeleverde project.




